Case Study: Collaboration Between McLine Studios and Generation One Inc.
Overview
This case study highlights the successful collaboration between McLine Studios and Generation One Inc. on the project at 2211 Elliot Ave. Effective communication and timely responses between both parties made this successful in delivering a high-quality outcome.
Client Background
Generation One Inc. is a leading company specializing in custom millwork solutions. They sought professional support for a small project that required a quick turnaround and precise execution.
Project Requirements
Niko Avlonitis from Generation One Inc. reached out to McLine Studios with specific plans and requests. Client has requested
• Review and development of drawings
• A rapid turnaround time of one week
• Efficient communication to address any queries
Project Communication Summary
Initial Consultation
Proposal and Approval
Project Execution
Outcome
The project was completed on time, adhering to the client’s specifications. Generation One Inc. expressed satisfaction with the collaboration, noting the efficiency and responsiveness of McLine Studios.






Testimonial
Working with McLine Studios was a seamless experience. Their prompt responses and attention to detail made our project come together smoothly. I highly recommend their services!
Niko Avlonitis
Conclusion
This case exemplifies the effectiveness of clear communication and prompt action in project management. The collaboration not only met the client’s needs but also laid the foundation for future projects between McLine Studios and Generation One Inc.
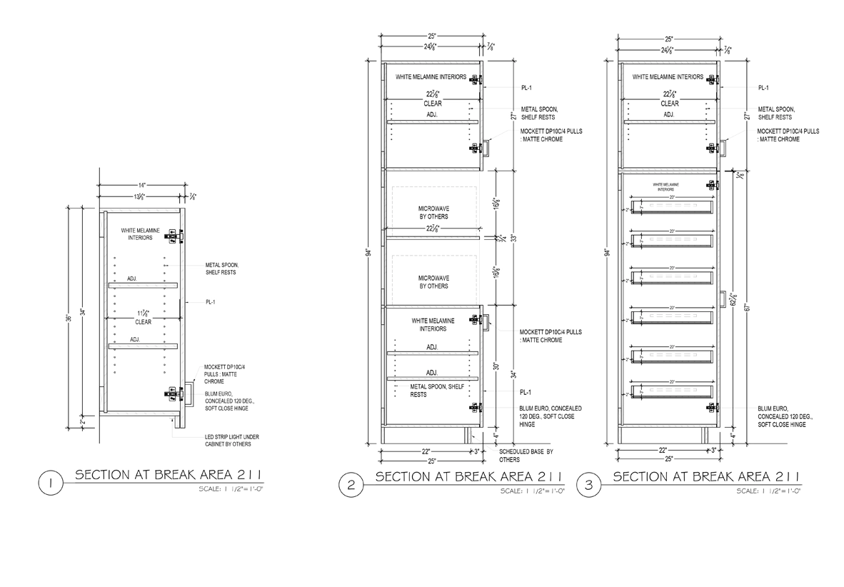
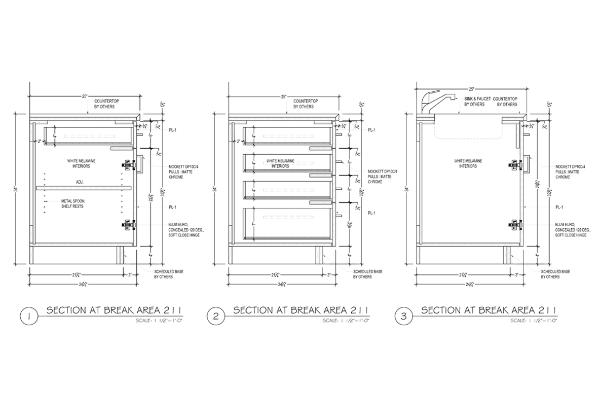
Our Work Samples




